Πολυτελής και σύγχρονη μεζονέτα 1ου–2ου ορόφου στην Άνω Γλυφάδα, ιδανική για οικογένειες που αναζητούν άνεση, υψηλή ποιότητα κατασκευής και χαμηλό ενεργειακό κόστος.
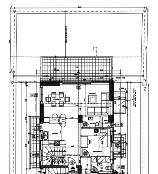
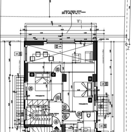
Η κατοικία διαθέτει τρία ευρύχωρα υπνοδωμάτια, δύο μπάνια και επιπλέον WC, ενώ ξεχωρίζει για τη λειτουργική και έξυπνη διαρρύθμισή της, καθώς και τα προσεγμένα, ποιοτικά τελειώματα. Είναι εξοπλισμένη με πόρτα ασφαλείας και προσφέρει αποθήκη και θέση στάθμευσης στο υπόγειο. Οι μεγάλοι ανοιχτοί χώροι και τα ανοίγματα εξασφαλίζουν άπλετο φυσικό φως καθ’ όλη τη διάρκεια της ημέρας.
Ιδιαίτερη έμφαση έχει δοθεί στην ενεργειακή απόδοση και τον σύγχρονο μηχανολογικό εξοπλισμό. Διαθέτει σύστημα θέρμανσης με αντλία θερμότητας, παραγωγή ζεστού νερού χρήσης μέσω αντλίας θερμότητας και ηλιακού θερμοσίφωνα, καθώς και εξωτερική θερμοπρόσοψη υψηλών προδιαγραφών, που εξασφαλίζει άριστη θερμομόνωση και άνεση όλο τον χρόνο.
Τα κουφώματα είναι minimal αλουμινίου με θερμοδιακοπή και διπλά ενεργειακά υαλοστάσια, προσφέροντας ενισχυμένη ηχομόνωση και σημαντική εξοικονόμηση ενέργειας.
Πρόκειται για ένα ακίνητο υψηλών προδιαγραφών, σε μία από τις πιο περιζήτητες περιοχές της Γλυφάδας, που συνδυάζει ποιότητα, αισθητική και σύγχρονες ανέσεις.
- ID
- 485
- Εμβαδόν
- 134 τ.μ.
- Τιμή ανά τ.μ.
- € 4.478
- Περιοχή
- Άνω Γλυφάδα (Γλυφάδα)
- Ζώνη
- Οικιστική ζώνη
- Δωμάτια
- 3
- Όροφος
- 1ος
- Θέση Στάθμευσης
- Ναι
- Έτος κατασκευής
- Υπό κατασκευή
- Σύστημα Θέρμανσης
- Αυτόνομη θέρμανση (Αντλία Θέρμανσης) - Ενδοδαπέδια θέρμανση
- Ενεργειακή κλάση
-
Α+
- Επίπεδα
- 2
- Κουζίνες
- 1
- Σαλόνια
- 1
- Μπάνια
- 2
- WC
- 1
- Κατάσταση
- Βαμμένο
- Χρήση
- Εξοχικό, Επενδυτικό, Tουριστική ενοικίαση
- Επιπλέον
- Πολυτελές
Χαρακτηριστικά
- Απόσταση απο τη θάλασσα (μ.): 3000
- Αποθήκη
- Ασανσέρ
- Βεράντα
- Διαμπερές
- Δορυφορική κεραία
- Εμβαδόν Οικοπέδου: 400 τ.μ.
- Εσωτερική σκάλα
- Ηλιακός θερμοσίφωνας
- Θέα
- Κοινόχρηστος κήπος
- Κλιματισμός
- Μηνιαία κοινόχρηστα: 80 €
- Κουφώματα: Αλουμινίου
- Νυχτερινό ρεύμα
- Πόρτα ασφαλείας
- Προσανατολισμός: Νοτιοανατολικός
- Πρόσβαση από: Άσφαλτο
- Πρόσβαση για ΑμεΑ
- Προσόψεως
- Σίτες
- Συναγερμός
- Τύποι Υαλοπινάκων: Διπλός υαλοπίνακας
- Τύπος δαπέδων: Ξύλο
- Φωτεινό